1044 Argyle – Modern Lakeside Residence
Set along the shoreline of Lake Ontario in Oakville, this custom home is designed to capture light, openness, and a strong connection to its natural surroundings. Clean horizontal lines, deep overhangs, and a sophisticated mix of concrete, wood, and glass give the exterior a calm yet commanding presence from the street.
Interiors
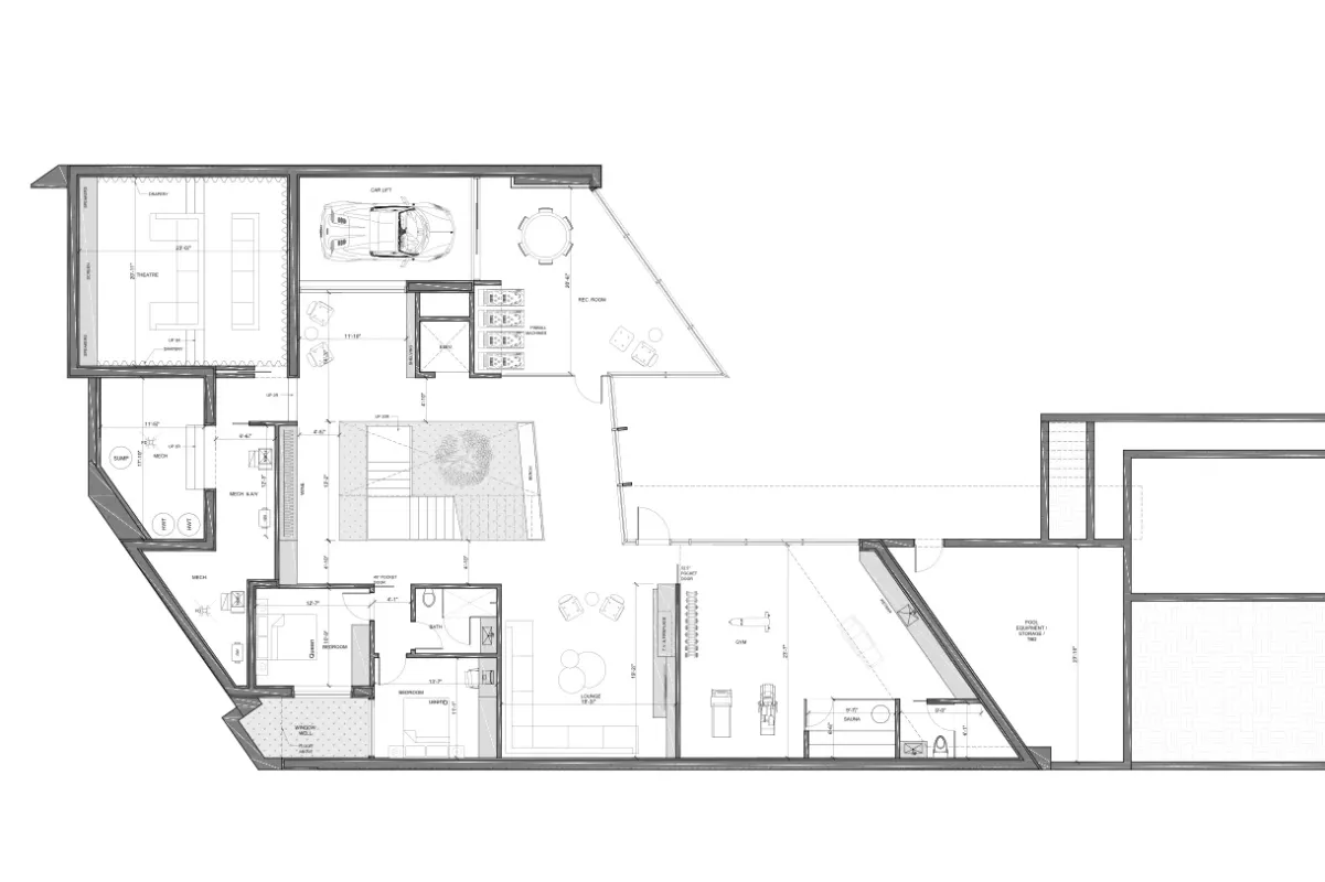
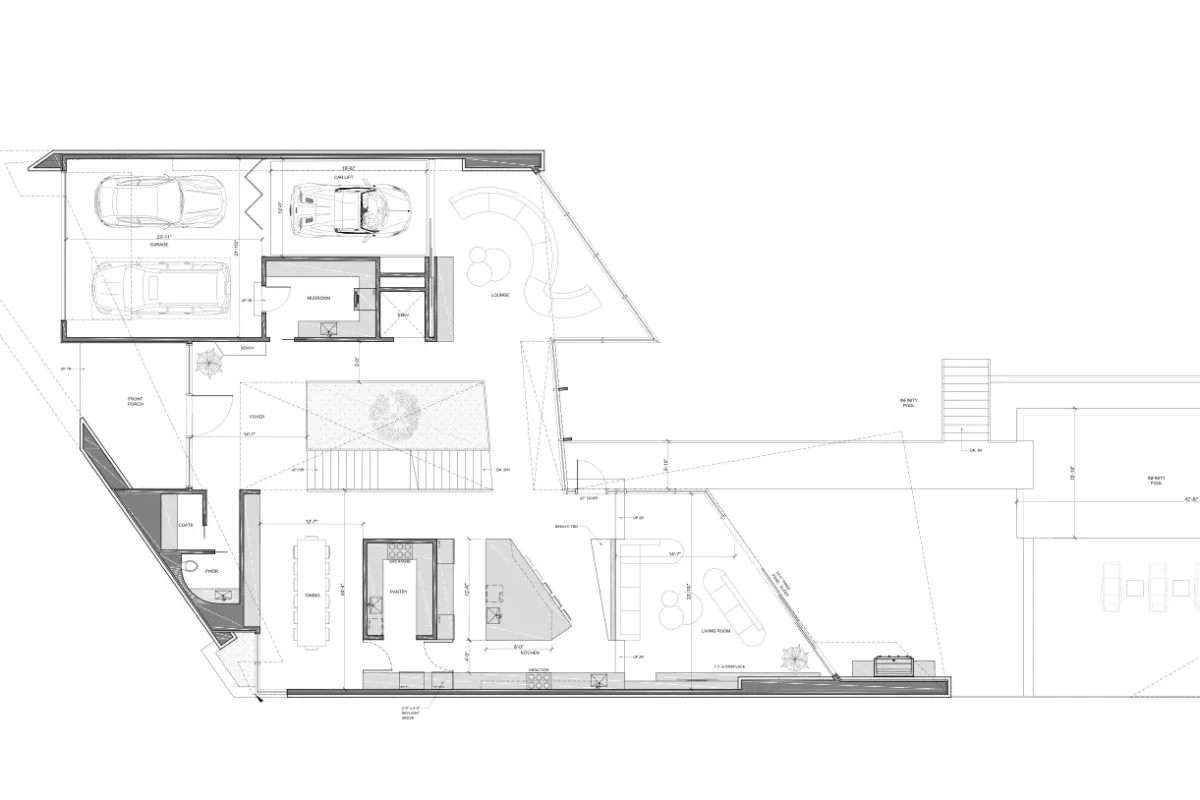
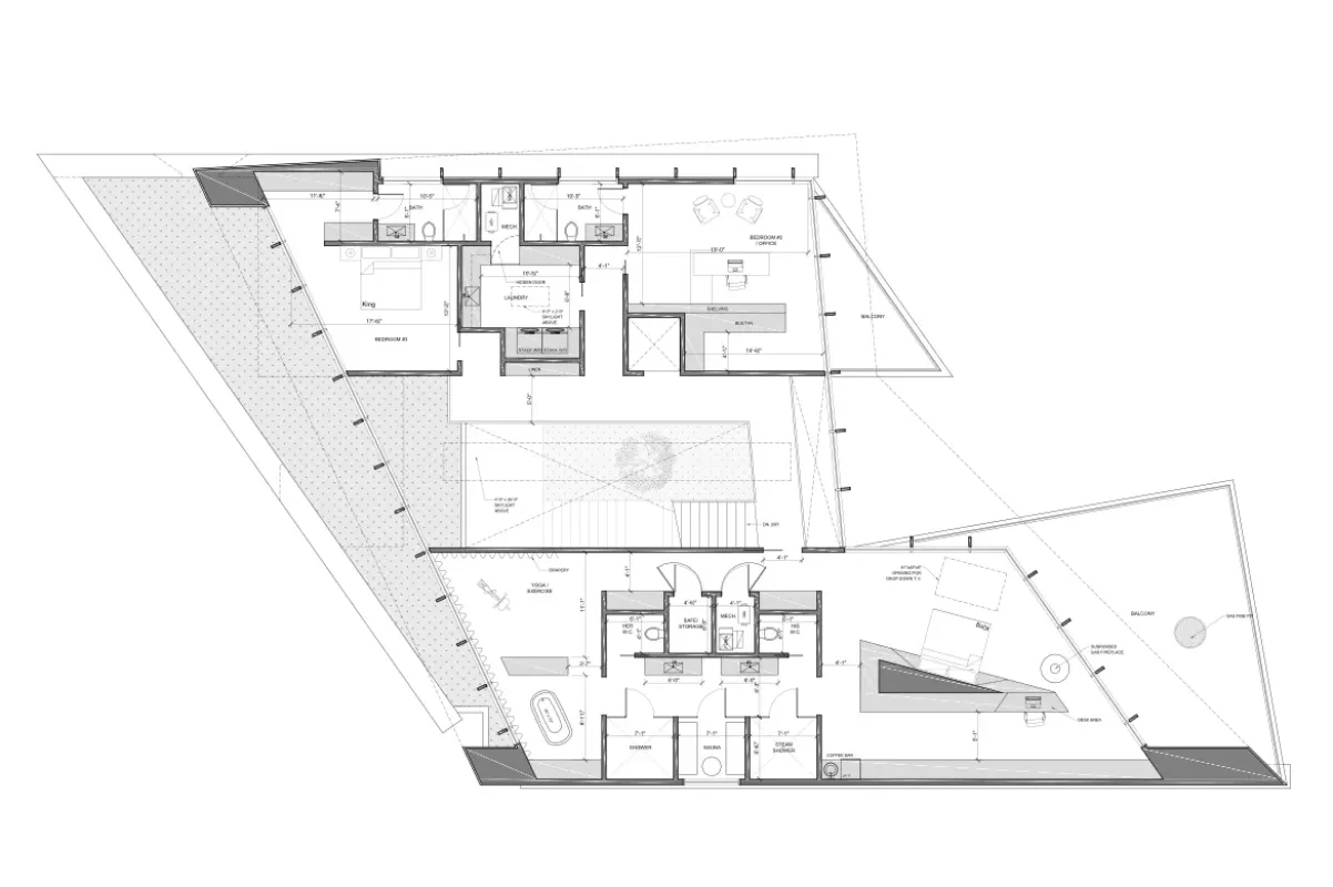
Planning
12,000 sq.ft.
HummingbirdHill Homes
Inside, the home opens into a dramatic central space featuring a floating timber stair and a double-height internal courtyard. Skylights wash the interior with natural light, highlighting the warm materials and the living tree feature at the heart of the home. Glass railings and open sightlines give the entire main level a sense of airiness and flow.
Floor-to-ceiling windows along the rear of the home frame uninterrupted views of Lake Ontario. Indoor spaces expand effortlessly onto stepped terraces and outdoor living areas, creating a layered experience that changes throughout the day. Multiple levels connect to the pool, lounge areas, and upper balconies, all designed to keep the lake as a constant focal point.
A restrained palette of wood, concrete, and glass keeps the home feeling warm and timeless. Every detail—from slim stair treads to clean window transitions—reflects a commitment to simplicity and craftsmanship, resulting in a home that feels peaceful, modern, and deeply connected to its site.


